

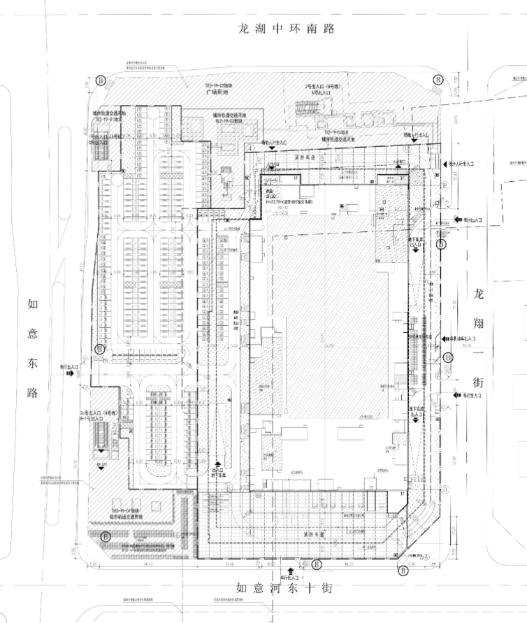
【大河財立方消息】 10月22日,鄭州市自然資源和規劃局鄭東新區分局公告,就山姆會員商店建設項目建筑方案征求意見。
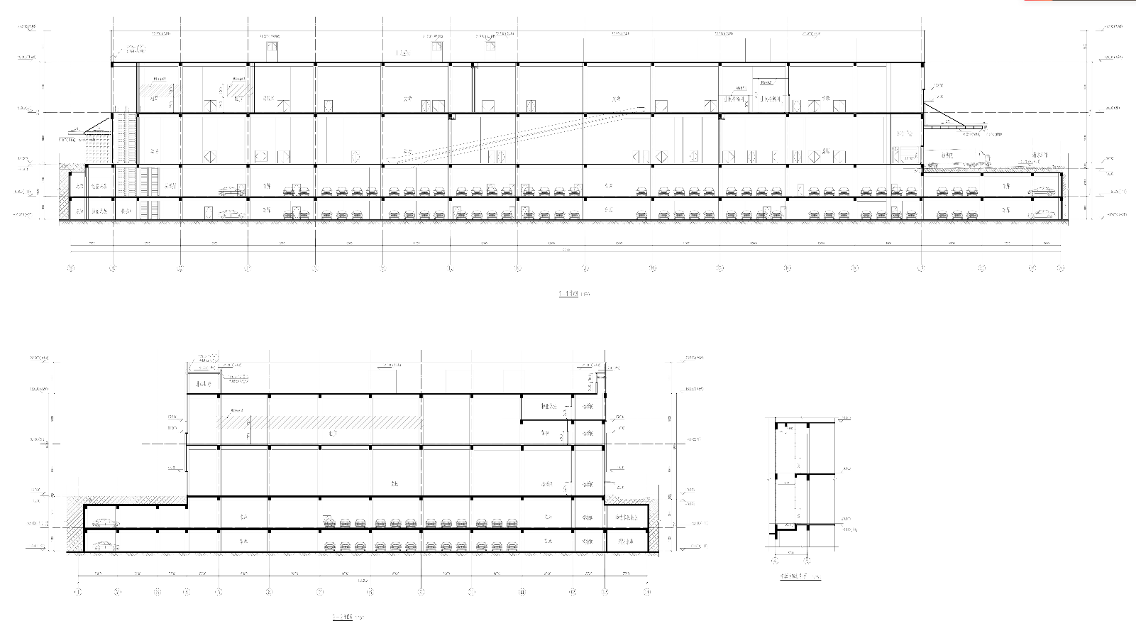
山姆會員商店項目位于如意東路東、如意河東十街北,總占地約44.01畝,由商店和交通服務場站2個塊地構成,其中:商店占地約32.26畝,總建筑面積約5.93萬平方米(地上建筑面積約2.49萬㎡,地下建筑面積約3.44萬平方米);地上建筑層數兩層,主要功能為賣場、配套用房及卸貨區;地下兩層主要功能為車庫及設備用房。
山姆會員店建筑高度23.7米,綠地率10.05%,機動車停車位724個,預留充電車位102個。
本次征求意見文件涉及總平面圖、立面圖、剖面圖、建筑單體效果圖、鳥瞰圖等。





